 |
The project is promoted by M/s ALFA VENTURES (P) Ltd with registered office at Alfa Towers, I S Press Road, Cochin – 682 018, Kerala, India.The project is conceived in a plot measuring 18.24 cents. The plot is an original land.
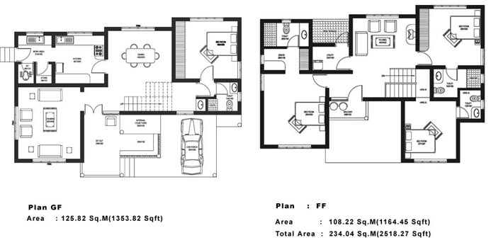
The project will have 3 designed Villas of area measuring around 2500 Sqft. The project can boast excellent amenities and features, which other builders seldom offer.The quality of construction will be top class complying with quality norms, specifications and standards. The promoter’s belief in QUALITY Service and QUALITY Product could be attributed to their zest for being and delivering the best and is further seen from the ISO certification they enjoy from global majors INTERTEK.
|
 |
 |